Nieuwbouwresidentie "REMI" met 18 BEN appartementen op een uitstekende locatie.
De betere supermarktketens, ziekenhuis AZ Rivierenland en het park van Boom zijn op wandelafstand.
Verder is er een directe verbinding met de belangrijkste invalswegen A12 en E19 naar Antwerpen, Brussel en Mechelen. Mobiliteit ten top !
Het project bestaat uit 2 gebouwen uitgevende op een prachtig aangelegde binnentuin.
In totaal zijn er 26 autostaanplaatsen, waarvan 14 ondergrondse, 8 overdekte staanplaatsen en 4 buitenstaanplaatsen op het gelijkvloers.
Elk appartement wordt afgewerkt met hoogwaardig kwalitatieve materialen en zal uitgerust zijn met de beste technieken inzake energiezuinigheid.
In blok A – Antwerpsestraat:
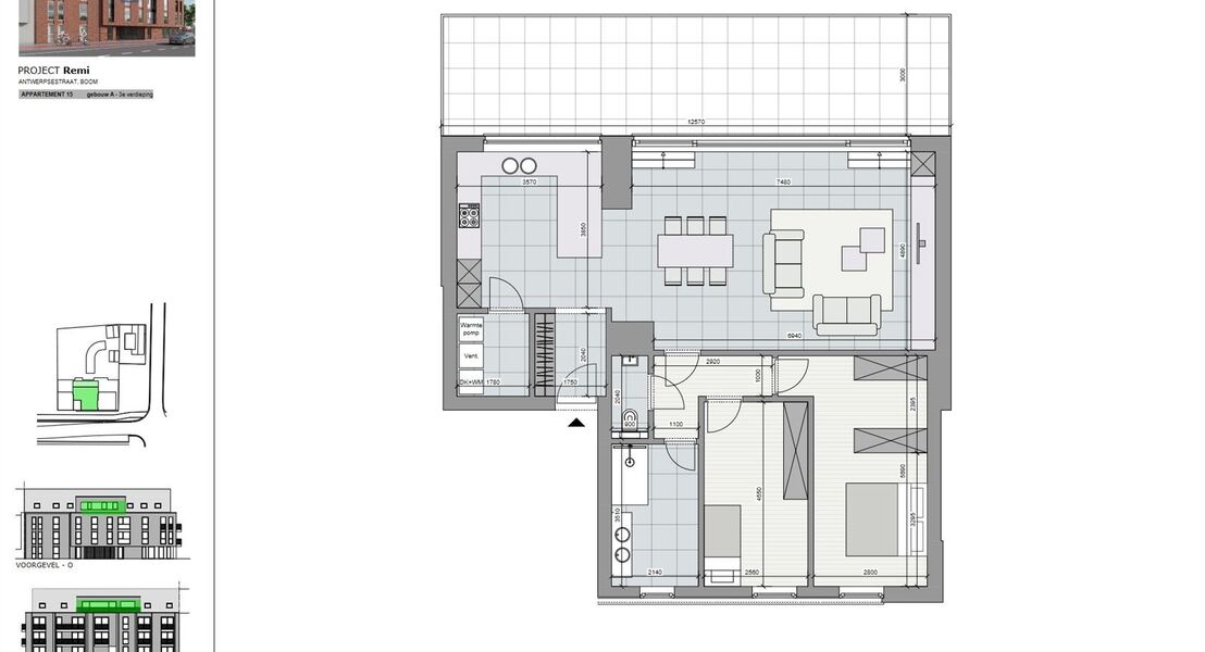
Het appartement/ penthouse "15" op de derde verdieping omvattende:
Inkomhall, apart toilet, badkamer, berging, nachthall, slaapkamer 1, slaapkamer 2, zitkamer, eetkamer met open keuken, terras.
Kortom de ideale residentie om er uw thuis van te maken of als investering.
Wenst U meer informatie, een persoonlijke toelichting of wil U tot aankoop overgaan, aarzel dan niet mij te contacteren op 0493/14.22.63 of wichard@walbersimmo.be.
Ik maak graag tijd voor U!
            
        De betere supermarktketens, ziekenhuis AZ Rivierenland en het park van Boom zijn op wandelafstand.
Verder is er een directe verbinding met de belangrijkste invalswegen A12 en E19 naar Antwerpen, Brussel en Mechelen. Mobiliteit ten top !
Het project bestaat uit 2 gebouwen uitgevende op een prachtig aangelegde binnentuin.
In totaal zijn er 26 autostaanplaatsen, waarvan 14 ondergrondse, 8 overdekte staanplaatsen en 4 buitenstaanplaatsen op het gelijkvloers.
Elk appartement wordt afgewerkt met hoogwaardig kwalitatieve materialen en zal uitgerust zijn met de beste technieken inzake energiezuinigheid.
In blok A – Antwerpsestraat:
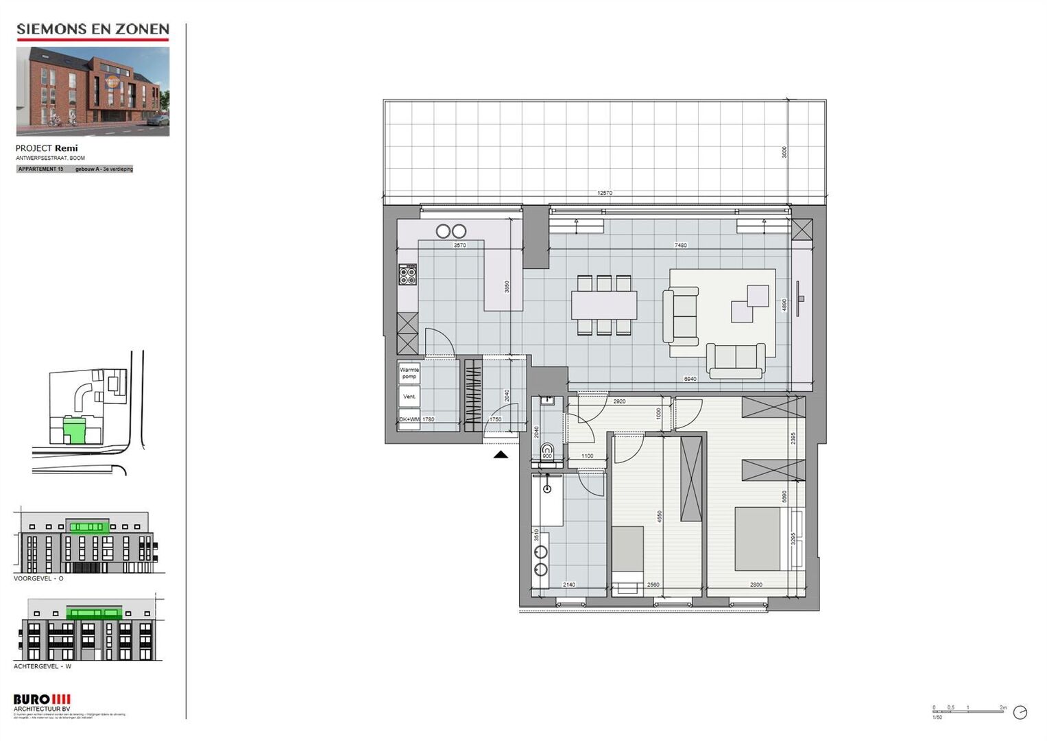
Het appartement/ penthouse "15" op de derde verdieping omvattende:
Inkomhall, apart toilet, badkamer, berging, nachthall, slaapkamer 1, slaapkamer 2, zitkamer, eetkamer met open keuken, terras.
Kortom de ideale residentie om er uw thuis van te maken of als investering.
Wenst U meer informatie, een persoonlijke toelichting of wil U tot aankoop overgaan, aarzel dan niet mij te contacteren op 0493/14.22.63 of wichard@walbersimmo.be.
Ik maak graag tijd voor U!
indeling
- Slaapkamers
- 2
- Badkamers
- 1
- Toiletten
- 1
- Type keuken
- Alle comfort
- Terras
- Ja
- Terrasoppervlakte
- 13 m²
financieel
- Prijs
- € 349.000
- Verkoop onder BTW stelsel
- Ja
- Kosten
- € 3.500 p/m
omgeving
- Omgeving school
- 761 m
comfort
- Videofoon
- Ja
- Lift
- Ja
gebouw
- Bewoonbare oppervlakte
- 100 m²
- Type bebouwing
- Halfopen
- Bouwjaar
- 2025
- Verdieping
- 3
- Verdieping(en)
- 3
- Type dak
- Puntdak
 Leipannen
terrein
- Perceel oppervlakte
- 1.483 m²
- Oriëntatie terras
- West
energie
- Type ramen
- PVC
- Beglazing
- Trippele beglazing
- Elektriciteitskeuring
- Ja, conform
- Verwarming
- warmtepomp
- Type verwarming
- Individueel
- Olietank
- Ja
technieken
- Elektriciteit
- Ja
garage
- Parking
- 1
stedenbouwkundige informatie
- Bestemming
- Woongebied
- Bouwvergunning
- Ja
- Verkavelingsvergunning
- Nee
- Voorkooprecht
- Nee
- Dagvaarding
- Geen rechterlijke herstelmaatregel of bestuurlijke maatregel opgelegd
- Overstromingsrisico
- Niet gelegen in een overstromingsgevoelig gebied
- G-score
- A
- P-score
- A
Interesse in deze eigendom?
ref: 17512
Blijf op de hoogte
Schrijf u inOp zoek naar iets specifiek? Laat uw zoekwensen hier achter en we zorgen ervoor dat u het juiste aanbod als eerste in uw mailbox krijgt
Gratis schatting
Wil u graag de échte verkoopwaarde van uw woning kennen? Vraag nu een gratis schatting voor verkoop!
Vraag hier aan 
                    Wenst u te verkopen
U wil uw woning, appartement of bouwgrond snel en zorgeloos verkopen aan een goede prijs? Dan bent u bij Walbers Immo aan het juiste adres.
Ik wil verkopen 
                     
             
                     
                     
                     
                     
                     
                     
                     
                     
                     
                     
                     
                     
                     
                     
                     
             
                             
                            